
产品特点
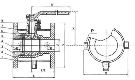
该产品具有良好的保温保冷特性,且阀门的通径和管径一至,介质呈直线流动,阻力小,最适合容易凝固、高粘度的液体介质。同时又能有效降低管路中介质的热量损失。整体式夹套设计,更能均匀地保温、保冷。夹套、阀体外侧与夹套接管焊接,允许蒸汽或冷水的最高压力为1MPa。
主要用于石油、化工、制药、食品等各类系统中,以输送常温下会凝固的高粘度介质。
|
公称通径
|
DN15~200、NPS 3/4~8
|
||||
|
公称压力(Mpa)
|
PN1.6~2.5、Class150~300、10K、20K
|
||||
|
阀门材料及适用工况
|
零件名称
|
材 料
|
|||
|
3.阀体
|
WCB
|
CF8(304)
|
CF8M(316)
|
||
|
2.阀座
|
1Cr18Ni9Ti
|
1Cr18Ni9Ti
|
0Cr18Ni12Mo2Ti
|
||
|
4.密封圈
|
聚四氟乙烯、对位聚笨
|
||||
|
5.球体
|
2Cr13
|
1Cr18Ni9Ti
|
0Cr18Ni12Mo2Ti
|
||
|
6.阀杆
|
2Cr13
|
1Cr18Ni9Ti
|
0Cr18Ni12Mo2Ti
|
||
|
1.夹套
|
25
|
25
|
25
|
||
|
7.填料
|
聚四氟乙烯、柔性石墨
|
||||
|
适用介质
|
水、蒸汽、油品
|
硝酸等腐蚀性介质
|
醋酸等腐蚀性介质
|
||
|
适用温度
|
-29~180℃(聚四氟乙烯)、-20~300℃(对位聚笨)
|
||||
|
设计制造
|
GB/T 12237989、API 608、API 6D、JPI 7S-48、BS5351
|
||||
|
结构长度
|
GB/T 12221989、ANSI B16.10;JIS B2002
|
||||
|
连接法兰
|
JB/T74~90(JB74~90)、GB9112~9131、HGJ44-76、SH3406;ANSI B16.5;JIS B2212~2214
|
||||
|
压力试验
|
JB/T 9092999、API 598
|
||||
|
传动方式
|
手动、蜗轮蜗杆传动、气动、电动。
|
||||
|
公称通径
|
d
|
L
|
D
|
E
|
Q
|
H
|
W
|
管螺纹
|
||
|
(mm)
|
(in)
|
(mm)
|
(in)
|
P
|
||||||
|
20
|
3/4"
|
19
|
117
|
40
|
1.5"
|
58.5
|
147
|
101
|
170
|
G3/4"
|
|
25
|
1"
|
25
|
127
|
50
|
2"
|
62.5
|
156
|
106
|
170
|
G3/4"
|
|
40
|
1 1/2"
|
38
|
165
|
65
|
2.5"
|
63.5
|
181
|
125
|
250
|
G3/4"
|
|
50
|
2"
|
51
|
178
|
80
|
3"
|
68
|
218
|
135
|
250
|
G3/4"
|
|
80
|
3"
|
76
|
229
|
150
|
6"
|
82
|
275
|
193
|
350
|
G3/4"
|
|
100
|
4"
|
102
|
254
|
200
|
8"
|
83
|
300
|
265
|
420
|
G3/4"
|
|
150
|
6"
|
152
|
292
|
250
|
10"
|
95
|
403
|
355
|
800
|
G3/4"
|
|
200
|
8"
|
203
|
330
|
300
|
12"
|
100
|
492
|
410
|
800
|
G3/4"
|
