
产品概述
氧气管路专用阀门是根据氧气管网运行特点以及考虑氧气介质的易燃易爆的特性,以安全可靠和性能优越为设计原则,并参照中华人民共和国冶金工业部制定的《氧气安全规程》的规定而设计、制造的确保氧气管网安全运行的专用阀门。
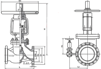
阀门类型:按照冶金工业部《钢铁企业氧气管网的若干技术规定》的规定采用截止阀。
主体材料选用不锈钢或阻燃性极好的铜合金,密封面为本体或堆焊D802,其余内件采用不锈钢或铜合金;传动部位的润滑采用不可燃的润滑脂, 并标有明显的禁油标记。
在结构上,支架采用全闭封,并有导除静电装置,阀杆上配有防尘帽。
我公司的氧气管路专用阀,自投放市场以来深受各大、中型钢铁厂、制氧厂、石化厂氧气管网的信赖!
1、对于公称压力PN≥1.6MPa、DNl25~200采用内旁通结构;DN250~500采用带外旁通阀结构。其目的是减小阀前、阀后的压力差以避免高流速、高冲刷以及防止产生高温,从而保证了氧气管网的安全运行,同时也减小了操作力矩。
2、介质流向:PN≥1.6MPa、DN≤100介质由阀瓣下方流入阀瓣上方(即低进高出),DN≥125介质由阀瓣卜方流入下方(高进低出)o对于DN≥125的阀门采用介质高进低出的流向,一方面足内旁通阀结构上的需要,另一方面由于介质压力的作用使阀门的关闭力大大减小。
3、该阀设有导静电安全装置,可避免因静电产生火花。
4、与普通截止阀相比,氧气管路用截止阀的支架部分采用全封闭式结构,且压紧填料时可以打开支架上的防护盖板,起到了防油防尘的作用。并有明显的禁油标记。
5、全部零件采用严格的脱脂处理。
|
公称压力 PN |
强度试验压力 MPa |
气密封试验压力 MPa |
适用介质 | 适用温度 |
| 水 | 气 | 氧气 | 常温 | |
| 1.6 | 2.4 | 1.6 | ||
| 2.5 | 3.8 | 2.5 | ||
| 3.0 | 4.5 | 3.0 | ||
| 4.0 | 6.0 | 4.0 |
| 零件名称 | 材料 |
| 阀体、阀盖、阀瓣 | 铸铬镍钛不锈钢、铜合金 |
| 阀杆 | 铬镍不锈钢 |
| 阀杆螺母 | 青铜 |
