ZBSF系列全不锈钢电磁阀

ZBSF系列全不锈钢电磁阀

 

产品用途
ZBSF系列全不锈钢电磁阀是工业过程自动化控制系统的执行器。它在接受电控信号后能自动开启或关闭,实现对管道中的流体介质的通断或流量调节控制。本系列电磁阀可广泛地应用于纺织、印刷、化工、塑料、橡胶、制药、食品、建材、机械、电器、表面处理等生产和科研部门以及浴室、食堂、空调等人们日常生活设施中。 ZBSF-Y系列电磁阀主要用于腐蚀液体、超净液体和食用液体等液体介质的控制。ZBSF系列电磁阀主要用于腐蚀气体、超净气体等气体介质控制。

主要技术参数

工作介质 腐蚀性气体、超净流体、食用流体ZBSF-1:气体用
ZBSF-1Y: 液体用 ZBSF-2:气体用 ZBSF-2Y:液体用
介质温度℃ ZBSF-1(1Y):≤60℃
ZBSF-2(2Y):≤200℃
公称压力(Mpa) 1.6
工作压差(Mpa) 0~1.6
电源电压 AC220V其余规格可作特殊订货
使用寿命 按JB/T7352-94规定
额定流量系数(KV)
泄露量(ml/min) 按JB/T7352-94·F规定
公称通径(mm) 10 15 20 25 32 40 50
功耗 AC≤70VA

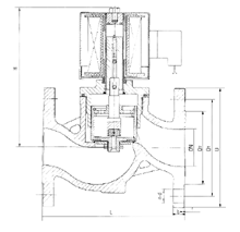
安装尺寸

DN L H D D1 D2 b f n-d
10 115 148 90 60 41 14 2 4-φ14
15 115 148 95 65 46 14 2 4-φ14
20 115 148 105 75 56 16 2 4-φ14
25 125 148 115 85 65 16 3 4-φ14
32 150 182 140 100 76 18 3 4-φ18
40 160 182 150 110 84 18 3 4-φ18
50 190 192 160 125 99 20 3 4-φ18



ZBSF系列全不锈钢电磁阀尺寸图
下一篇:没有了

相关产品推荐

关注官方微信

Copyright © 广东佰隆机电有限公司 版权所有 Power by DedeCms