用途特点
GA42H型安全阀适用于温度≤450℃的电站锅炉和压力容器上,防止压力超过允许最高值,介质可为蒸汽、空气。
主要零部件材料
|
NO. |
零件名称 |
C型 材料 |
|
1 |
阀体 |
碳钢 |
|
2 |
导向套 |
不锈钢 |
|
3 |
阀瓣 |
2Cr13 |
|
4 |
阀杆 |
2Cr13 |
|
5 |
杠杆 |
碳钢 |
|
6 |
重锤 |
铸铁 |
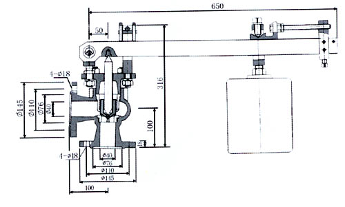
外形尺寸和连接尺寸(mm)
|
型号 |
公称通径DN(mm) |
尺寸 (mm) |
|
do-z |
D |
D1 |
D2 |
D6 |
f |
f1 |
b |
z-d |
L |
H |
出口法兰式 |
出口承插式 |
|
DN’ |
D2’ |
n-M’ |
D1’ |
D’ |
d1 |
K2 |
K3 |
D3 |
|
GA42H6 |
50 |
40×1 |
165 |
125 |
100 |
/ |
3 |
/ |
16 |
48 |
840 |
412 |
125 |
175 |
86 |
120 |
235 |
120 |
145 |
162 |
190 |
|
GA42H-25 |
50 |
40×1 |
165 |
125 |
100 |
/ |
3 |
/ |
20 |
48 |
840 |
412 |
125 |
175 |
86 |
120 |
235 |
120 |
145 |
162 |
190 |
|
GA42H-40 |
50 |
40×1 |
165 |
125 |
100 |
88 |
3 |
4 |
20 |
48 |
840 |
412 |
125 |
175 |
86 |
120 |
235 |
120 |
145 |
162 |
190 |
|
GA42H-64 |
50 |
40×1 |
175 |
135 |
105 |
88 |
3 |
4 |
26 |
4-23 |
840 |
420 |
125 |
175 |
86 |
120 |
235 |
120 |
145 |
162 |
190 |
|
GA42H00 |
50 |
40×1 |
195 |
145 |
112 |
88 |
3 |
4 |
28 |
4-25 |
840 |
420 |
125 |
175 |
86 |
120 |
235 |
120 |
145 |
162 |
190 |
产品结构